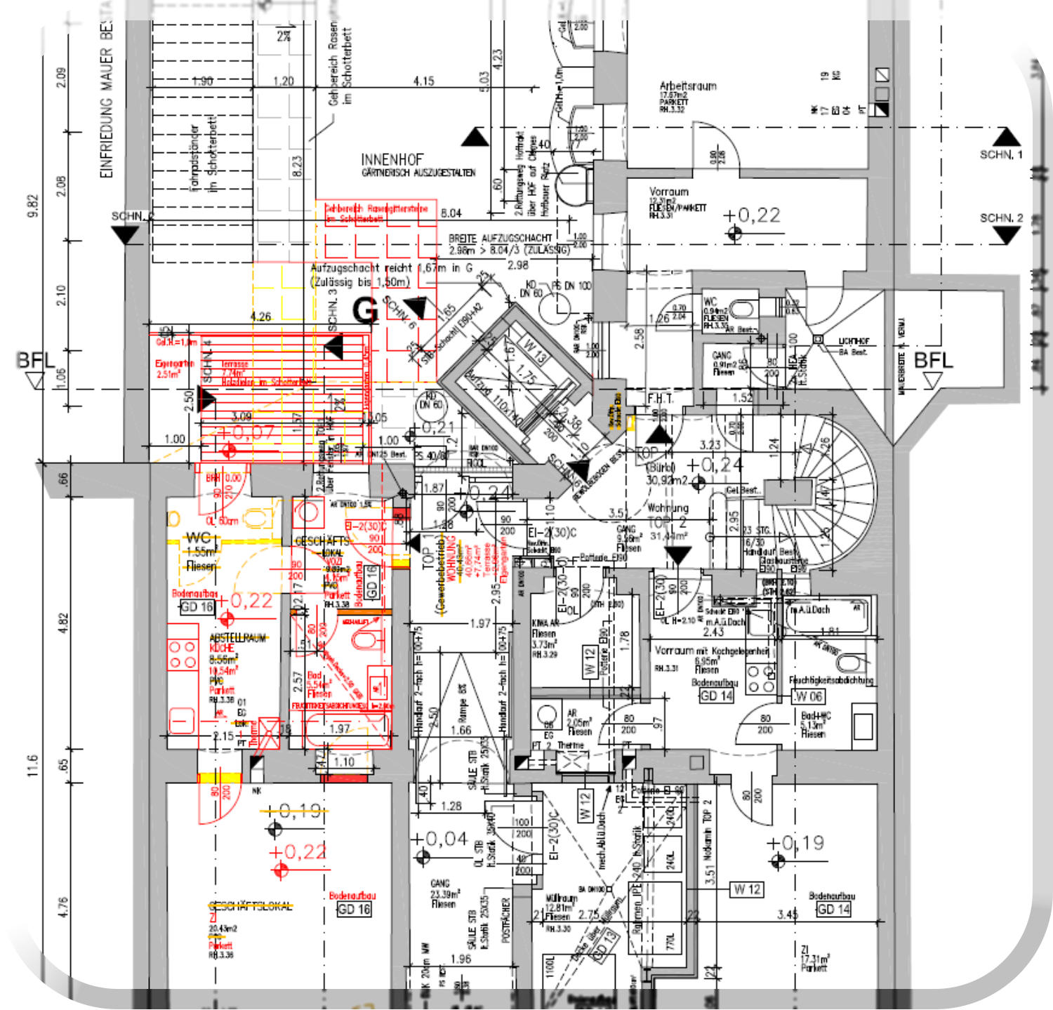
Planen: Einreichplan, Ausführungsplan, Detailplan, Schalungsplan, Bewehrungsplan, Stahlbauplan, Brandschutzplan,etc.
Berechnen:
Visualisieren